日期:2023-05-25
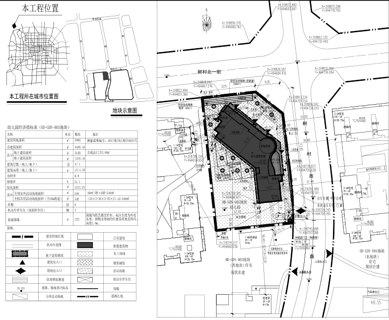
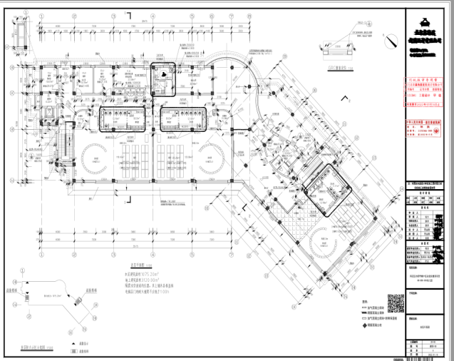
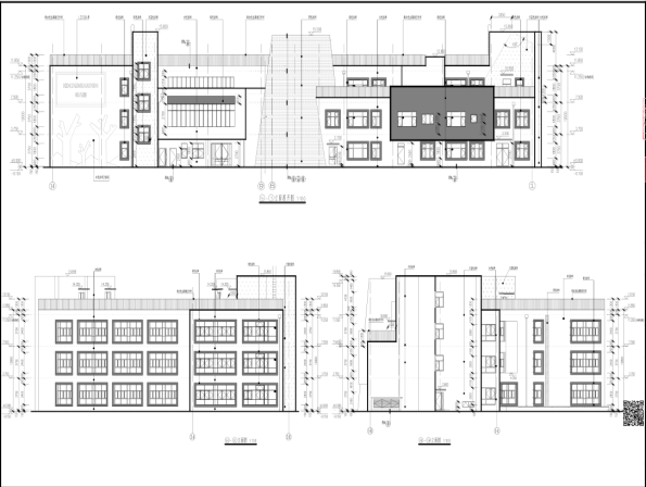
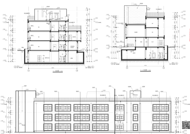
为推进功德寺配套幼儿园项目建设进展,确保顺利移交,5月18日下午,海国幼教与教委基建科、海淀镇政府相关部门、施工单位、项目筹备组于项目部会议室召开沟通协调会。

会前,海国幼教成立以副总经理、总园长巨光玲为组长的在建园项目筹备组,实地调研该园所施工现场,充分了解施工项目进展安排。




会上,各方就图纸调整、项目改造、设备点位等进行细致沟通,针对今后使用的卫生保健规范、安全管理、幼儿活动、食堂使用等相关使用需求进行了充分的讨论,推进后续联系及跟进,明确图纸修改意见并建立联系机制。




海国幼教将不断探索政府国企合作办园新模式,坚持高起点、高标准集团化办学,着力打造富有区域特色的学前教育,积极承担社会主体责任,努力办好百姓家门口的优质幼儿园。